Amplitud y naturaleza en O Batán: Tu nueva vida en Cabañas.
Si buscas espacio para toda la familia y un jardín donde perderte, esta propiedad en O Batán es para ti. Ubicada en un entorno privilegiado de Cabañas, esta casa ofrece la combinación perfecta de comodidad, espacio y aire puro.
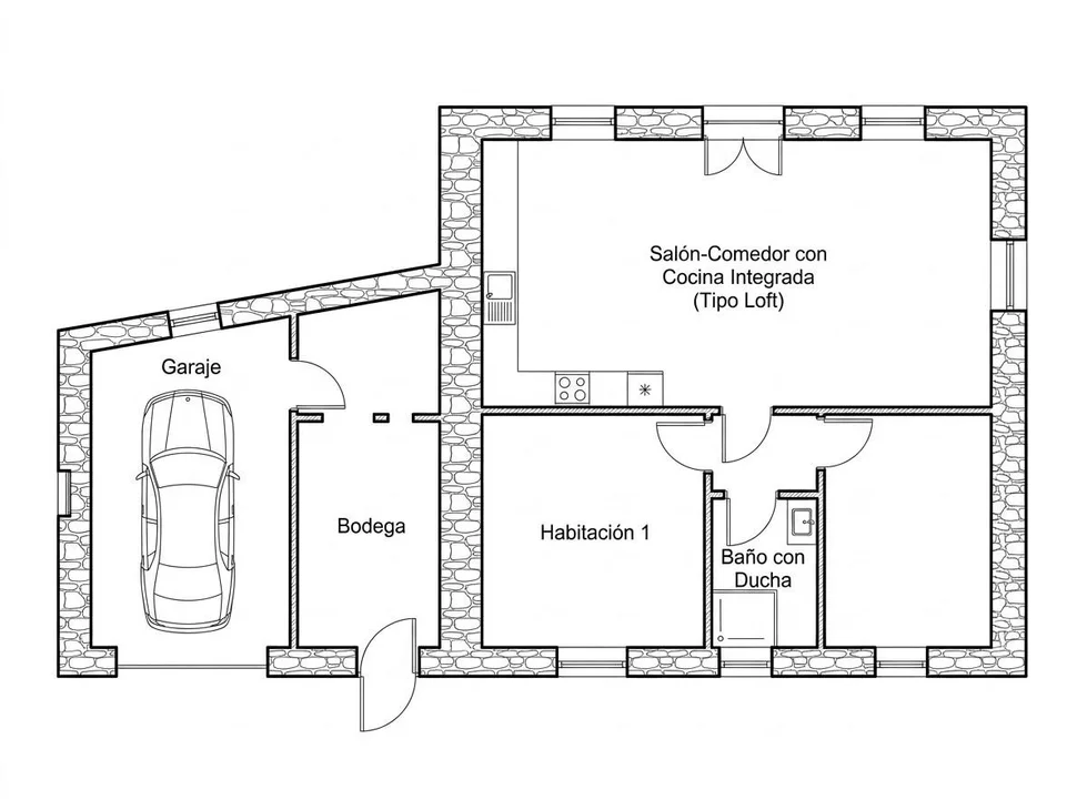
Planta Baja (Funcionalidad total): Cocina-comedor, baño completo y 2 habitaciones. Además, cuenta con garaje y bodega, ideales para almacenaje o zona de trabajo.
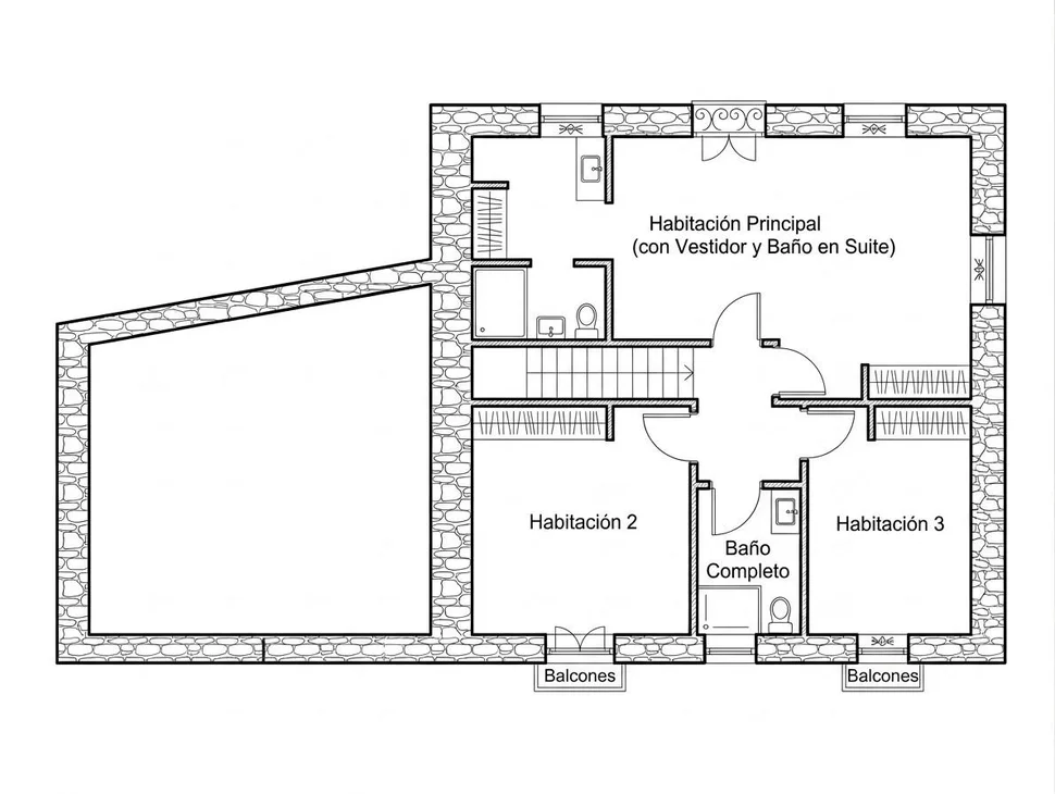
Planta Superior (Zona de descanso): Un amplio salón-comedor lleno de luz y 4 dormitorios adicionales, rematados con un fallado (desván) que ofrece un gran potencial de almacenaje extra.
El Exterior: Una impresionante finca de 1.400 m² en suelo urbano, cerrada y con árboles consolidados. El jardín ideal para barbacoas, juegos al aire libre o incluso una piscina.
Suministros: Agua de traída y fosa séptica con posibilidad de enganche a alcantarillado.
¿Quieres ver el potencial de esta casa en persona? Contacta con nosotros y agenda tu visita.
A la casa le hace falta rehabilitación integral.
Leer más +Leer menos -Si buscas espacio para toda la familia y un jardín donde perderte, esta propiedad en O Batán es para ti. Ubicada en un entorno privilegiado de Cabañas, esta casa ofrece la combinación perfecta de comodidad, espacio y aire puro.
Planta Baja (Funcionalidad total): Cocina-comedor, baño completo y 2 habitaciones. Además, cuenta con garaje y bodega, ideales para almacenaje o zona de trabajo.
Planta Superior (Zona de descanso): Un amplio salón-comedor lleno de luz y 4 dormitorios adicionales, rematados con un fallado (desván) que ofrece un gran potencial de almacenaje extra.
El Exterior: Una impresionante finca de 1.400 m² en suelo urbano, cerrada y con árboles consolidados. El jardín ideal para barbacoas, juegos al aire libre o incluso una piscina.
Suministros: Agua de traída y fosa séptica con posibilidad de enganche a alcantarillado.
¿Quieres ver el potencial de esta casa en persona? Contacta con nosotros y agenda tu visita.
A la casa le hace falta rehabilitación integral.
Características del inmueble
Características generales
Habitaciones5Baños1AscensorNoGarajeNoCalefacciónNo tiene calefacciónAño de construcción1890EstadoPara reformarMetros construidos149.00Metros de parcela1412TrasteroNoAmuebladoNoDespensaSiTerrazaNo
Datos de interés
Entorno
ÁrbolesSiCostaSi
Certificación energética
Exento








































































