Casa adosada en el centro de Ares con terraza y vistas parciales al mar
298.000€
300.000€
Añadir a favoritos
Ares es un pueblo costero que tiene todo lo que necesitas para establecer el lugar ideal de tus sueños en cuanto a vivienda. Esta sensación es con la que nos vamos, una vez visitada esta construcción que data del año 2006.
El acceso a la misma, se produce a través de un hall señorial que nos va a permitir descifrar unos interiores marcados por conceptos como la elegancia, luminosidad y amplitud, entre otros. Todo esto se distribuirá a través de tres alturas diferentes.
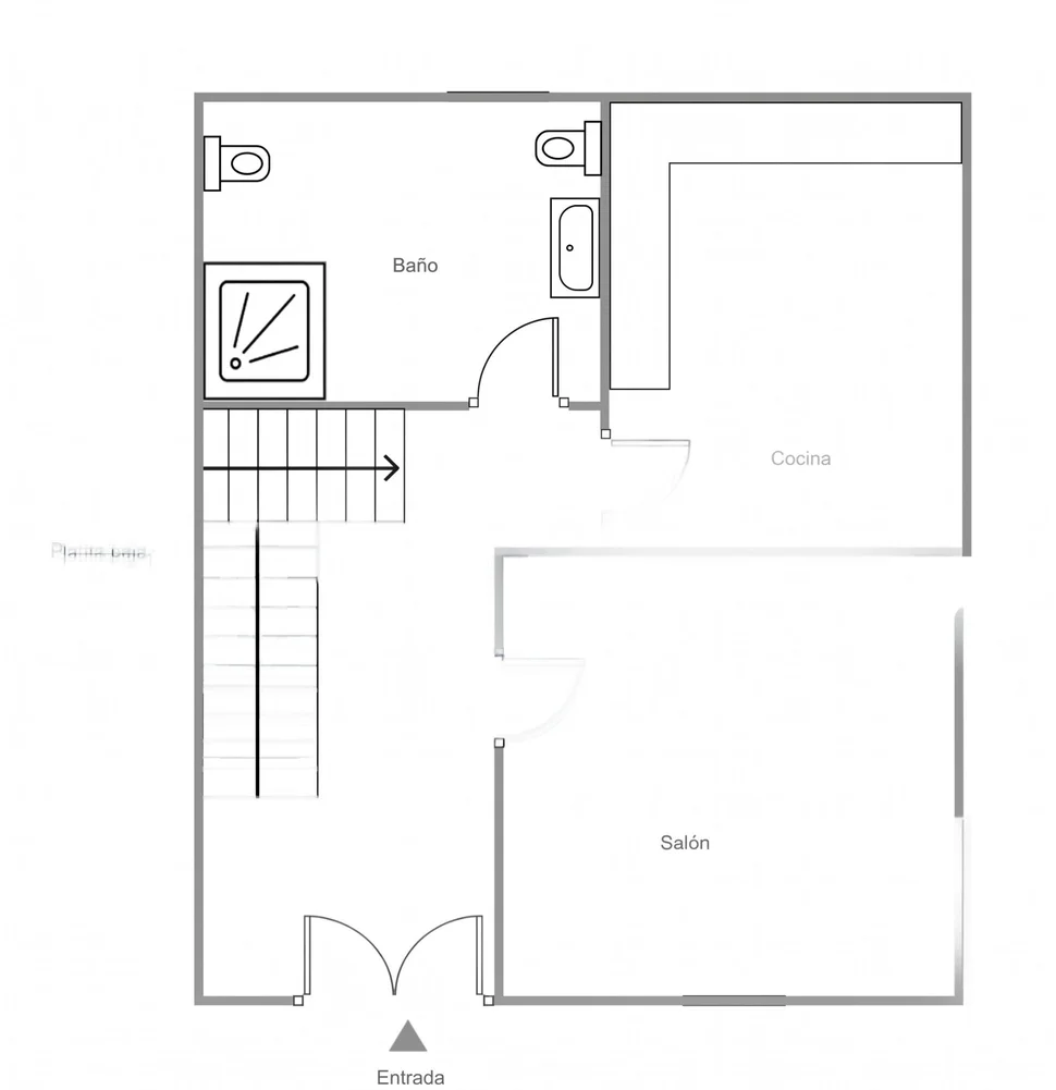
PLANTA BAJA: con su coqueto salón, bonita cocina equipada con espacio de almacenaje múltiple, gran cuarto de baño con plato de ducha y pequeño trastero localizable en el hueco de la escalera.
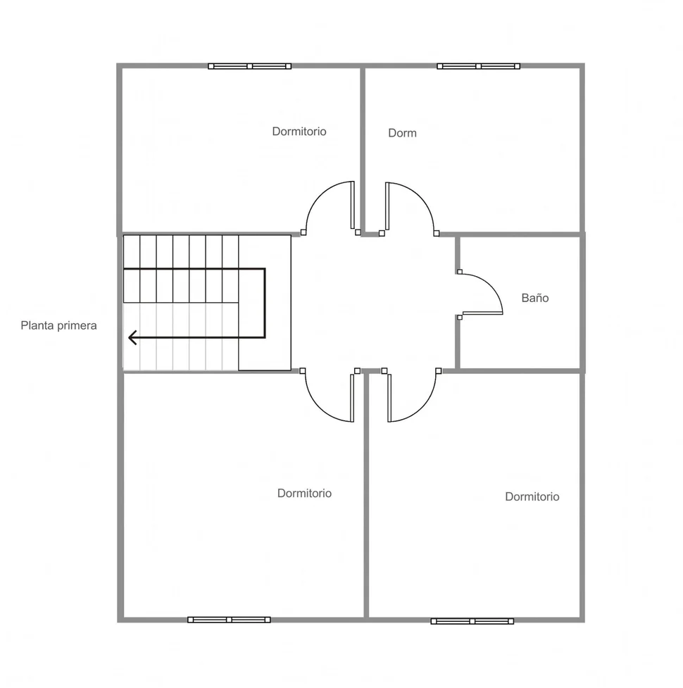
PRIMERA PLANTA: disfrutaremos de cuatro dormitorios y el segundo cuarto de baño con bañera.
SEGUNDA PLANTA: tenemos dos dormitorios el primero, sin lugar a duda, de tamaño reseñable y un despacho que serviría como zona de teletrabajo. Todo esto está presidido por una increíble terraza desde la cual podemos visualizar el mar.
Datos de interés: Suelos de plaqueta, Ventanales combinados de aluminio y madera, Agua caliente de butano, Calefacción central y Posibilidad de aparcar un vehículo en la puerta de acceso a la vivienda.
Si tenemos que hablar de su localización, cabe destacar que es una zona familiar, con multitud de servicios y a tan solo 100 MTS de la playa.
No desaproveches esta oportunidad y llámanos ya.
Leer más +Leer menos -El acceso a la misma, se produce a través de un hall señorial que nos va a permitir descifrar unos interiores marcados por conceptos como la elegancia, luminosidad y amplitud, entre otros. Todo esto se distribuirá a través de tres alturas diferentes.
PLANTA BAJA: con su coqueto salón, bonita cocina equipada con espacio de almacenaje múltiple, gran cuarto de baño con plato de ducha y pequeño trastero localizable en el hueco de la escalera.
PRIMERA PLANTA: disfrutaremos de cuatro dormitorios y el segundo cuarto de baño con bañera.
SEGUNDA PLANTA: tenemos dos dormitorios el primero, sin lugar a duda, de tamaño reseñable y un despacho que serviría como zona de teletrabajo. Todo esto está presidido por una increíble terraza desde la cual podemos visualizar el mar.
Datos de interés: Suelos de plaqueta, Ventanales combinados de aluminio y madera, Agua caliente de butano, Calefacción central y Posibilidad de aparcar un vehículo en la puerta de acceso a la vivienda.
Si tenemos que hablar de su localización, cabe destacar que es una zona familiar, con multitud de servicios y a tan solo 100 MTS de la playa.
No desaproveches esta oportunidad y llámanos ya.
Características del inmueble
Características generales
Habitaciones7Baños2Aseo1AscensorNoGarajeNoCalefacciónCentralAño de construcción2006EstadoBuen estadoMetros construidos190.00Agua CalienteCalentador ButanoTrasteroSiAmuebladoSiDespensaSiTerrazaSiDistancia a la playa100
Datos de interés
Cerca de la playaSiArmarios EmpotradosSi
Entorno
ColegiosSiCostaSiZonas infantilesSi
Certificación energética
Pendiente de certificación
Ubicación
Otros inmuebles en venta en Ares
Venta
Ref. SC01860
Venta
Ref. SC01802
Venta
Ref. SC01730




































































































