Trasladémonos hoy a la ciudad vieja de A Coruña. Centro neurálgico de la ciudad herculina, y enclave de calles tan populares y conocidas como la Real o Riego de Agua y la Plaza de María Pita, lugares todos ellos por los que transcurre la bulliciosa vida de la ciudad de cristal y vinculadas tradicionalmente al comercio, y que son la puerta de entrada al casco histórico de la ciudad.
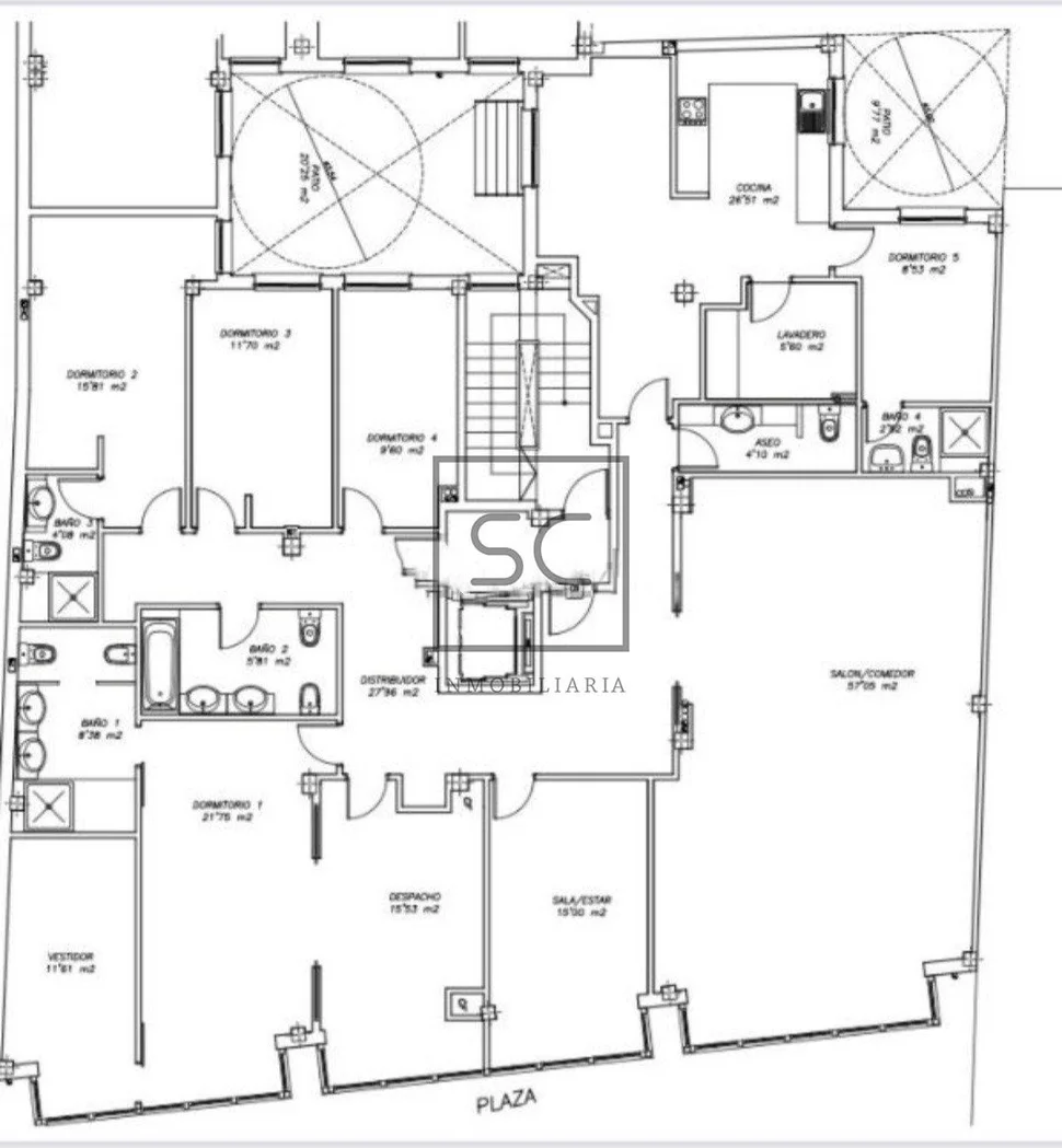
A escasos metros de la plaza de María Pita os presentamos este lujoso piso, la edificación, a la que no falta detalle, es del año 2003 y tiene una superficie total de 280m2, superficie que podríamos segregar en 2 viviendas de 140m2 cada una.
A nuestra llegada nos acoge un hall de entrada que da paso al amplio salón-comedor de 60m2, cocina amueblada con electrodomésticos, zona de lavandería, aseo de cortesía, una habitación de servicio con baño, dormitorio principal con vestidor y baño integrados, otro dormitorio con otro baño integrado, y tres habitaciones más, dos de ellas actualmente están destinadas a sala de estar y despacho, y el último cuarto de baño que comparten estas estancias.
Podemos destacar que todas las estancias disponen de hilo musical, calefacción con suelo radiante e instalación domótica.
Dispone de un trastero habilitado como bodega, y tiene además una plaza de garaje, con la posibilidad de adquirir una segunda plaza en el mismo edificio.
No dudéis en pedir más información.
Leer más +Leer menos -A escasos metros de la plaza de María Pita os presentamos este lujoso piso, la edificación, a la que no falta detalle, es del año 2003 y tiene una superficie total de 280m2, superficie que podríamos segregar en 2 viviendas de 140m2 cada una.
A nuestra llegada nos acoge un hall de entrada que da paso al amplio salón-comedor de 60m2, cocina amueblada con electrodomésticos, zona de lavandería, aseo de cortesía, una habitación de servicio con baño, dormitorio principal con vestidor y baño integrados, otro dormitorio con otro baño integrado, y tres habitaciones más, dos de ellas actualmente están destinadas a sala de estar y despacho, y el último cuarto de baño que comparten estas estancias.
Podemos destacar que todas las estancias disponen de hilo musical, calefacción con suelo radiante e instalación domótica.
Dispone de un trastero habilitado como bodega, y tiene además una plaza de garaje, con la posibilidad de adquirir una segunda plaza en el mismo edificio.
No dudéis en pedir más información.
Características del inmueble
Características generales
Habitaciones6Baños4Aseo1AscensorSiGarajeSiCalefacciónSuelo RadianteAño de construcción2003EstadoEntrar a vivirPlanta2ºComunidad80 € mesMetros construidos320.00Agua CalienteTermo ElectricoTrasteroSiAmuebladoNoTerrazaNoLavandería1
Datos de interés
Armarios EmpotradosSiLavanderíaSi
Entorno
AutobusesSiColegiosSiCentros comercialesSi
Certificación energética
Pendiente de certificación




























































