Centro de Miño — Una oportunidad que no se repite
Pocas veces el mercado ofrece algo así: un edificio completo a 400 metros de la playa con proyecto visado, permisos del Concello y de Patrimonio ya en mano, listo para convertirse en dos viviendas de diseño contemporáneo en pleno centro de Miño.
¿Qué hay dentro?
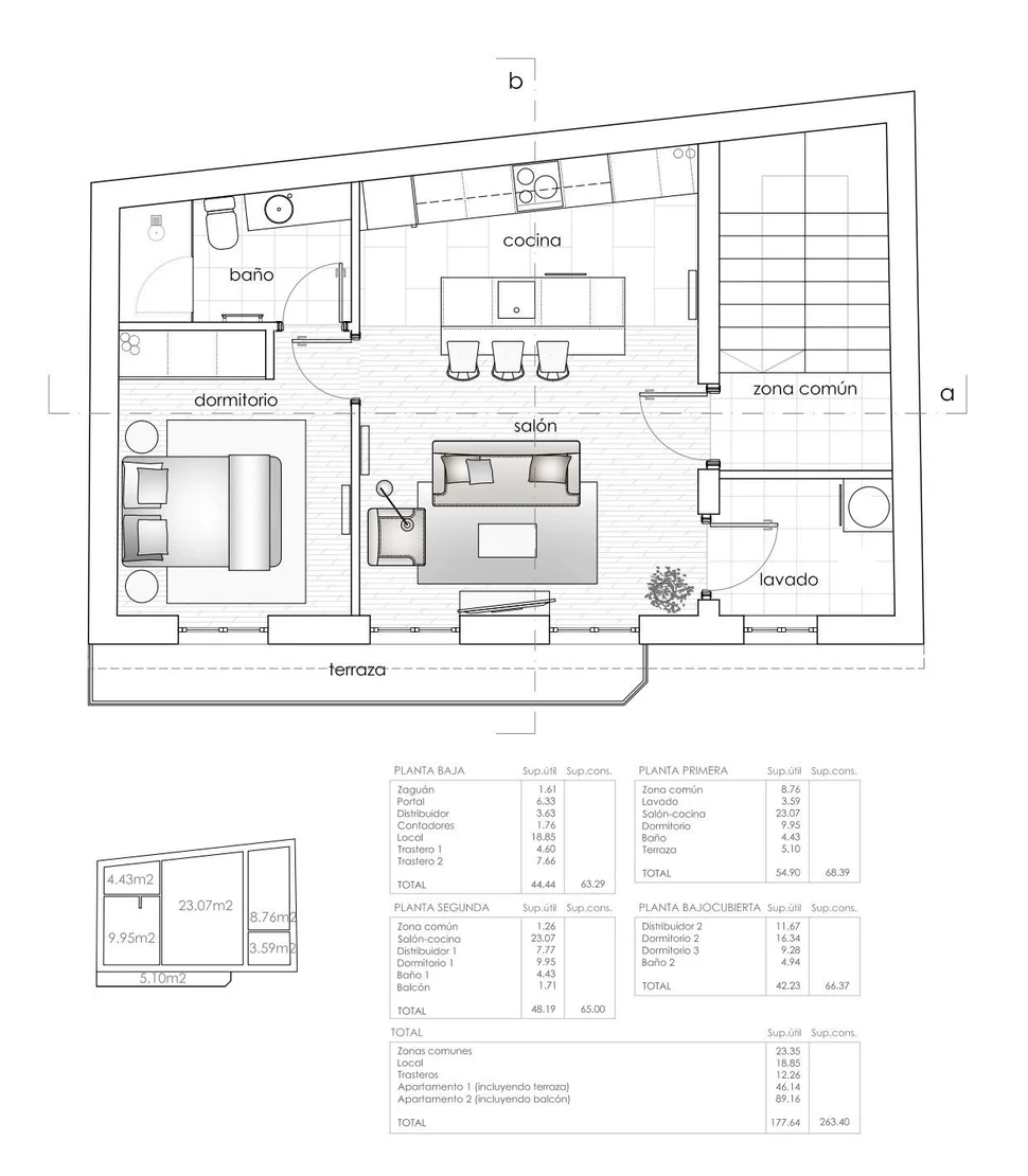
Piso Primero — 45 m² útiles pensados para vivir sin complicaciones: cocina-salón integrada, dormitorio con baño en suite, baño adicional y terraza. Completa la unidad un trastero propio en planta baja de unos 14 m². Todo lo que necesitas, sin nada que sobre.
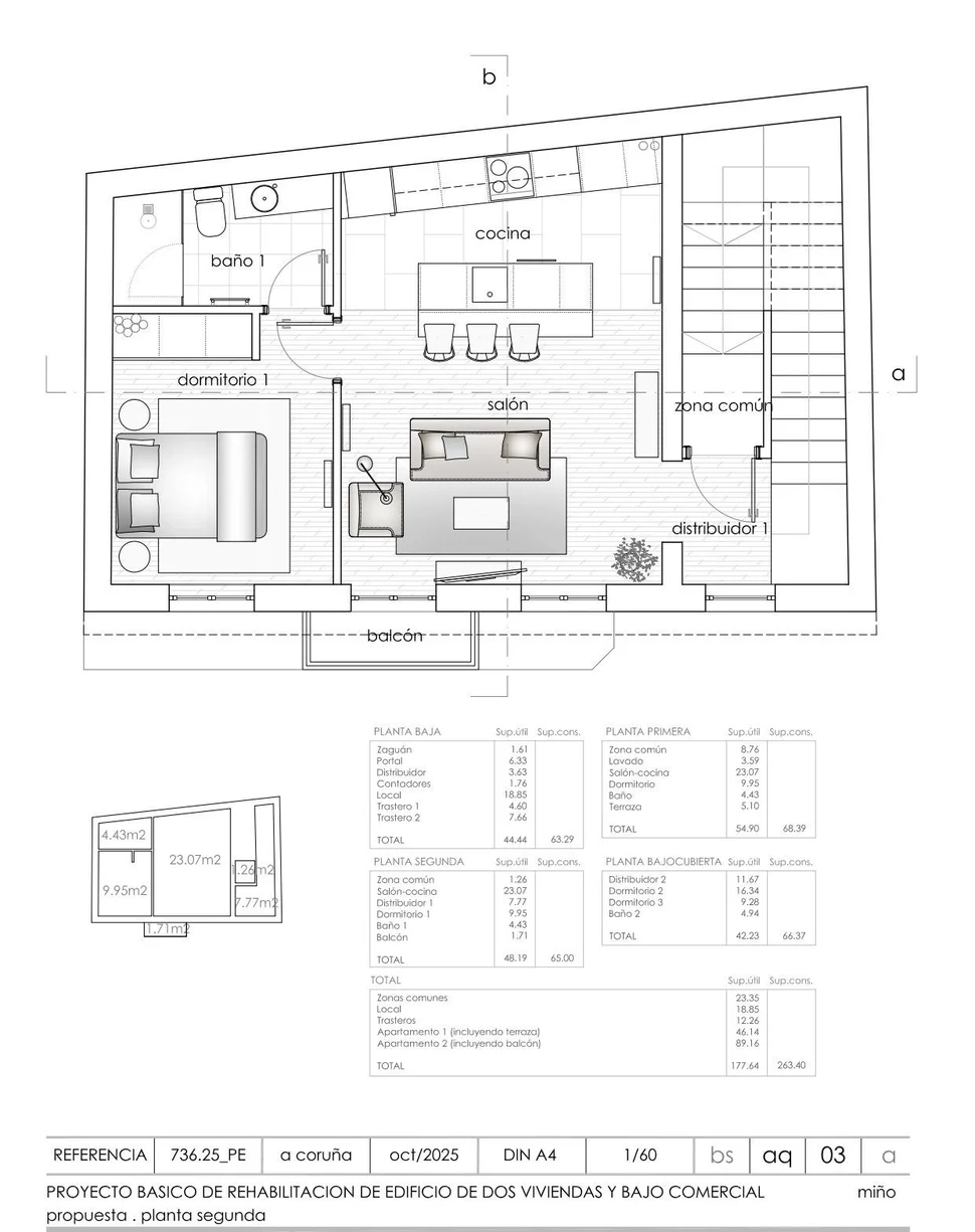
Dúplex (2ª planta + Bajo Cubierta) — 90 m² distribuidos en dos niveles con carácter. En la planta principal: cocina-salón, dormitorio en suite, aseo y balcón. Bajo cubierta: dos dormitorios adicionales, uno de ellos con baño en suite, y baño común. Suma además un local en planta baja de 18 m² con múltiples posibilidades.
Terminaciones de nivel:
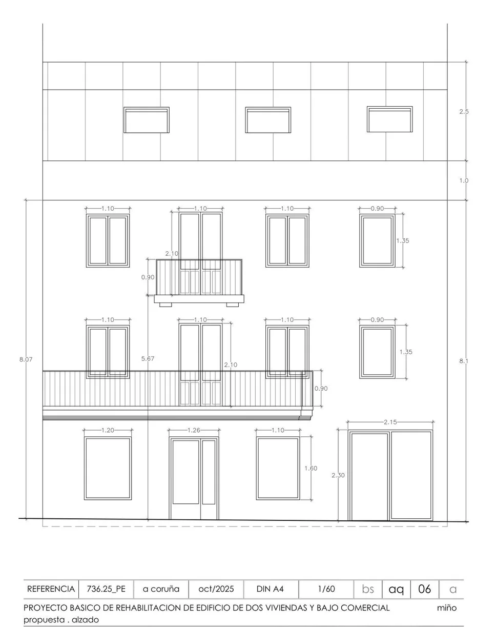
Estructura de hormigón, calefacción eléctrica de alta eficiencia con discriminación horaria, ACS mediante bomba de calor aire-agua, carpintería exterior de aluminio lacado o PVC en tonos verdes o azulados, carpintería interior de madera, tarima laminada y plaqueta cerámica.
Dos formas de hacerlo tuyo:
- Edificio entero para rehabilitar (con proyecto incluido): 125.000 €
- Local (trasteros) + Piso Primero llave en mano + Dúplex llave en mano. Todo rehabilitado: 315.000€
¿Te interesa? No lo dejes para mañana.
Esta promoción combina lo mejor de dos mundos: la libertad de personalizar tu hogar y la seguridad de un proyecto ya aprobado. Llámanos o escríbenos hoy mismo y te contamos todos los detalles, incluyendo la memoria de calidades completa y las condiciones de financiación. En SC Inmobiliaria te acompañamos en cada paso.
Leer más +Leer menos -Pocas veces el mercado ofrece algo así: un edificio completo a 400 metros de la playa con proyecto visado, permisos del Concello y de Patrimonio ya en mano, listo para convertirse en dos viviendas de diseño contemporáneo en pleno centro de Miño.
¿Qué hay dentro?
Piso Primero — 45 m² útiles pensados para vivir sin complicaciones: cocina-salón integrada, dormitorio con baño en suite, baño adicional y terraza. Completa la unidad un trastero propio en planta baja de unos 14 m². Todo lo que necesitas, sin nada que sobre.
Dúplex (2ª planta + Bajo Cubierta) — 90 m² distribuidos en dos niveles con carácter. En la planta principal: cocina-salón, dormitorio en suite, aseo y balcón. Bajo cubierta: dos dormitorios adicionales, uno de ellos con baño en suite, y baño común. Suma además un local en planta baja de 18 m² con múltiples posibilidades.
Terminaciones de nivel:
Estructura de hormigón, calefacción eléctrica de alta eficiencia con discriminación horaria, ACS mediante bomba de calor aire-agua, carpintería exterior de aluminio lacado o PVC en tonos verdes o azulados, carpintería interior de madera, tarima laminada y plaqueta cerámica.
Dos formas de hacerlo tuyo:
- Edificio entero para rehabilitar (con proyecto incluido): 125.000 €
- Local (trasteros) + Piso Primero llave en mano + Dúplex llave en mano. Todo rehabilitado: 315.000€
¿Te interesa? No lo dejes para mañana.
Esta promoción combina lo mejor de dos mundos: la libertad de personalizar tu hogar y la seguridad de un proyecto ya aprobado. Llámanos o escríbenos hoy mismo y te contamos todos los detalles, incluyendo la memoria de calidades completa y las condiciones de financiación. En SC Inmobiliaria te acompañamos en cada paso.
Características del inmueble
Características generales
Habitaciones4Baños2AscensorNoGarajeNoCalefacciónNo tiene calefacciónAño de construcción1950EstadoPara reformarMetros construidos197.00TrasteroSiAmuebladoNoTerrazaSiDistancia a la playa400
Datos de interés
Cerca de la playaSi
Entorno
AutobusesSiColegiosSiCostaSi
Certificación energética
Exento
















































